Свежие публикации
Французское остекление балкона — плюсы и минусы
В этой статье мы разберем преимущества и недостатки такого остекления. Для ясности уточним, что французским балконом называют две разные вещи:...
Как выровнять пол на балконе правильно? Поэтапные шаги — видео
Перед выполнением отделочных работ необходимо выровнять черновое основание: благодаря этому обеспечивается более высокая прочность конструкции. Если выполнять монтаж чистового покрытия...
Как остеклить балкон 137 серии дома? Цены и правильный монтаж.
В домах 137 серии балконные блоки отличаются нестандартной конфигурацией и размерами. В сочетании с оригинальной формой снаружи помещения они не...
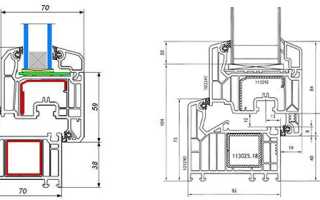
Теплый алюминий для балконов: цены на алюминиевые окна.
Теплое алюминиевое остекление лоджий не слишком распространено в России. В процентном соотношении оно составляет примерно 20% от общего числа алюминиевых...
Остеклить Балкон или лоджию в доме серии КОПЭ
  Остекление балконов копэ может представлять некоторые сложности, поскольку изначально их не предполагали стеклить. И если большие 3-метровые лоджии застеклить...
Балкон с выносом: разрешение, способы и стоимость.
Жители малогабаритных квартир бывают часто недовольны стандартной планировкой жилья. В частности, много неудобств доставляют узкие миниатюрные балконы. Проблема актуальна как...
Показать ещё
Популярные публикации