В конструкции окна Rehau Geneo применяются инновационные разработки, увеличивающие показатели прочности, теплосбережения, а также большую площадь сплошного остекления без стального армирования. В основе создания профиля фиброволоконный материал Rau-Fipro, износостойкий и устойчивый к регулярным нагрузкам на каркас.
Преимущества и уникальность
Инновационная конструкция вместе с фиброволоконным материалом Rau-Fipro позволяет обеспечить типу профиля качественную теплоизоляцию. Система признана энергоэффективной, поэтому применяется при строительстве жилых сооружений с небольшим расходом тепловой энергии. Волокна Rau-Fipro применяются в качестве альтернативы армирующим элементам.
Профиль, который отличается рекордными показателями изоляции, позволяет экономить до 76% тепловой энергии.


Уменьшенная высота непрозрачных элементов (каркаса, соединительных креплений) обеспечивает оригинальный дизайн конструкции. Отсутствие громоздкого армирования позволяет сохранить эстетичность оконной рамы при высоких значениях по теплоизоляции. Усовершенствованная технология поддерживает взломобезопасность конструкции.
Стоимость Rehau Geneo в московской компании «Завод Окон ПВХ»:
![]() ![]() |
![]() ![]() |
![]() ![]() |
![]() ![]() |
| от 18 500 руб | от 24 900 руб | от 37 800 руб | от 33 400 руб |
Уникальная система пластиковых окон обеспечивает защиту от проникновения шума. Герметичность поддерживают контуры уплотняющих прокладок. Усовершенствованная форма утеплителя и небольшая масса профиля обеспечивают плавность движения створок, облегчают процесс закрытия и открытия оконной рамы.
Отсутствие жесткого армирования из стали снижает затраты на производство и сокращает время изготовления на 30%. Заявленный производителем срок службы конструкций составляет до 60 лет.


Оконный профиль на 40% легче стандартного варианта с армированием. Характеристики изделия обеспечивают простоту установки в проеме. В сравнении со стандартными окнами ПВХ, окна Geneo отличаются небольшой массой, которая не сказывается на показателях прочности, т.к. системы усилены по периметру и в углах рамы.
Тип конструкции позволяет сохранять большую площадь остекления и реализовывать авторские проекты. По показателям освещенности помещения оконный профиль схож с системой Delight-Design Rehau.


Конструкции оптимальны для многоэтажных зданий и частных малоэтажных домов. Технология позволяет использовать системы при возведении новых комплексов либо работ по реконструкции старого жилфонда.
Материал Rau-Fipro, который отличается высокими техническими характеристиками, обеспечивает требуемые показатели жесткости и позволяет реализовывать сложные конструктивные решения. Возможно обустройство закругленных каркасов для рам, т.к. материал обладает упругостью при сохранении износостойкости. Преимущество материала — и в возможности повторной переработки.


Окна Рехау Генео предоставляют широкие возможности форм и цветовых решений. Конструкции можно декорировать под природные материалы (древесина, камни) либо окрашивать в контрасные цветовые сочетания под проект. Система устойчива к изменениям температурных режимов, атмосферным осадкам и проста в уходе, не требует окрашивания.
Технические характеристики
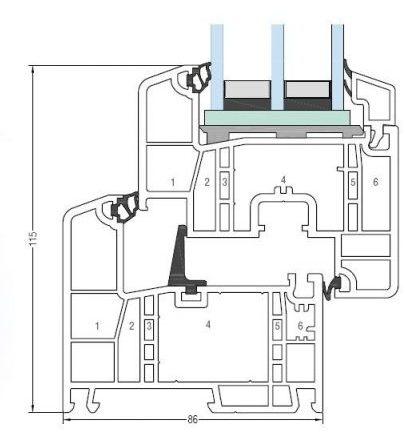
Особенности окон представлены в описании свойств и технических характеристиках изделия. Показатель сопротивления теплопередачи профиля составляет не меньше 1,05 м2°С/Вт. Соответствуют европейским нормативам показатели звукоизоляции профиля (до 5 класса). Конструкция шестикамерная, системная глубина Rehau Geneo — 86 мм.


В профиль устанавливаются стеклопакеты толщиной от 40 до 54 мм. Теплосберегающие характеристики системы поддерживаются сплошным уплотнением створок из 2 контуров, обеспечивающих надежное примыкание к раме.
Максимальная высота профиля без армирования достигает 145 см, ширина -145 см. Толщина внешних стенок профиля составляет не больше 3 мм. Структура конструкции обеспечивает прочное крепление фурнитуры, в том числе в стыковочных пространствах. Возможна установка стеклопакета марки «триплекс».
Поверхность профиля гладкая и глянцевая, не требующая дополнительной отделки. При необходимости профили декорируются ламинирующей пленкой.
Профиль относится к числу конструкций, которые отличаются рекордными показателями уровней водо- и воздухопроницаемости. Характеристики выше утвержденных нормативов ГОСТ 23166-99 в классе А. При стандарте в 600 Па показатель конструкций составляет 2700 Па. Каркасы Geneo отличает простота в установке замков и креплений.
В сравнении со стандартными окнами ПВХ, системы отличаются высокими характеристиками взломобезопасности (от класса 3). Показатель теплоизоляции составляет 0,85 Вт/м²K. Звукоизоляция системы высокая (до 5 уровня).
С помощью материала Rau-Fipro можно создавать разные формы профилей в соответстствии с проектом. Раме придается конфигурация трапеции, арки, овала и т.д. При этом размеры конструкции остаются на одном уровне с типовыми армированными профилями.
Подъемно-сдвижная система Geneo HST
Подъемно-сдвижная система Rehau Geneo HST позволяет закрывать проем максимальной высотой до 2,7 м и шириной до 10 м. При этом панорамные оконные конструкции сохраняют энергоэффективность за счет уплотнителя.


- способны закрыть проемы до 10 метров.
- RAU- FIPRO — фиброматериал, усиливает ядро профиля (используется также в авиастроении)
- глянцевая поверхность
- порог с термическим разделением
- 2 ой класс взломоустойчивости
- ударопрочные стелкопакеты
- установка замков
Сдвижные системы не относятся к стандартным, как и панорамные раздвижные двери. Для длительного использования конструкции оснащают качественными комплектующими.
Система отличается противовзломными характеристиками при использовании стекол с бронированием и усовершенствованных запирающих устройств.


Подъемно-раздвижные окна профиля Geneo относятся к портальным системам, предназначаются для застекления рам стандартных либо панорамных. Конструкции функционируют по принципу створок в шкафах-купе, каждое полотно перемещается по своей плоскости.
Подъемно-раздвижные оконные рамы изготавливают из профильных систем А-класса. Количество профильных перекладин в системе минимальное, что делает оконные блоки эстетичными.
Наиболее эффективны раздвижные механизмы в малогабаритных помещениях, т.к. позволяют сохранять свободное пространство.


Подъемно-сдвижная конструкция открывается посредством оборота ручки на 180°, затем рабочую створку приподнимают на 10-15 мм и передвигают по роликовым направляющим до закрытия либо открытия. Конструкция позволяет фиксировать створку в любом положении.
В закрытом состоянии створка плотно примыкает к раме, уплотнители обеспечивают надежную звуко- и теплоизоляцию. Даже при больших габаритах проема окна и массы створок конструкция открывается плавно, без шума.
Фурнитура
Фурнитура для системы Rehau Geneo используется стандартная поворотная либо сдвижная, поворотно-наклонная, вращательная, наклонно-сдвижная и т.д. Конструкцию дополняют взломобезопасными элементами. В профиле присутствует скрытая система петель, позволяющая монтировать усиления IVS.
Остекление больших поверхностей возможно за счет сочетания креплений несущих планок и фурнитуры с винтовыми каналами, а также поперечных крепежных элементов. Необходимо подбирать схожую по дизайну фурнитуру для окон и дверей для создания единого стиля в помещении.


Стоимость
Цена зависит от конструкции, декоративного оформления профиля, размеров каркаса, наличия дополнительных элементов. Рассчитывать цену на вид окна необходимо в соответствии с габаритами и конфигурацией проема.
Заказ конструкции по авторскому проекту стоит дороже типовых фабричных изделий. Цена зависит и от установленного стеклопакета (энергосберегающий, мультифункциональный, бронированный и т.д.).
На цену влияют декоративные дополнения стеклопакета (ламинация, тонировка, раскладка). Многие компании предлагают заказчикам экспресс-формы расчета стоимости на окна в соответствии с размерами.
Пример цен в компании «Завод Окон ПВХ»:
| Тип изделия | Цена за изделие | Цена за м.2. |
| Одностворчатое окно | 13065 р. | 11200 р. |
| 2 — створчатое | 18800 р. | 12150 р. |
| 3 — створчатое | 23940 р. | 10800 р. |
| Блок балконный | 21600 р. | 10700 р. |
В целом профиль Geneo 86 — один из самых дорогих в ассортименте от Рехау, но это объясняется его высокими характеристиками.


Отзывы
Светлана, 40 лет, г. Москва:
Виктор Павлович, 52 года, г. Королев Московской обл.:
Екатерина, 35 лет, г. Санкт-Петербург:



