За несколько десятков лет работы производитель профильных систем Veka сумел завоевать признание потребителей во многих странах. В числе основных преимуществ этих пластиковых окон надо назвать высокое качество, долгий срок эксплуатации изделий и широкий выбор комплектаций. На территории России повышенным спросом пользуется линейка профилей Softline (СофтЛайн) с панелями 70 мм и 82 мм.
Отличие окон Softline 70 и 82 мм от других профильных систем Veka
Компания предлагает несколько видов профилей, среди которых:
- Artline;
- Softline;
- Proline;
- Swingline;
- Sunline;
- Euroline;
- Vekaslide.
Отличие профилей Veka Softline состоит в технических характеристиках окон.
Монтажная ширина


Монтажная ширина — один из главных показателей, на которые обращают внимание при выборе пластиковых окон. Под этим определением стоит понимать поперечный размер рамы, примыкающей к стене.
В случае с линейкой профилей СофтЛайн речь идет о монтажной ширине 70 мм и 82 мм. Эти показатели превышают характеристики профилей стандарт многих других линеек этого производителя.
*опрос для тех, кто пользуется этими окнами. Ваше мнение поможет нашим читателям определиться с выбором производителя.
Уровень теплоизоляции
Благодаря увеличенной монтажной ширине в окнах Софтлайн удается достичь более высокого уровня теплоизоляции и звукоизоляции. Такие стеклопакеты эффективно справляются с несколькими задачами:
- препятствуют проникновению холодного воздуха даже в суровых климатических условиях;
- заглушают уличный шум оживленных магистралей.


При этом варианты с меньшей шириной рамы нельзя назвать менее качественными. При выборе следует исходить из требований к оконным системам. Так в регионах с мягким климатом в широких рамах необходимости нет, тогда как районы с суровым климатом требуют усиленного утепления жилья.
Посмотрите цены на окна Veka Softline 70 и 82 от компаний «Завод Балконов» и «Окна Фортали»:
![]() ![]() |
![]() ![]() |
![]() ![]() |
![]() ![]() |
| Завод Балконов | Фортали | ||
| от 6 450 руб/м2 | от 8 100 руб/м2 | от 6 700 руб/м2 | от 8 900 руб/м2 |
Стоимость
При описании профиля Veka Softline 70 мм и 82 мм нужно учитывать и цену изделий. По сравнению с некоторыми другими линейками компании, его можно назвать профилем премиум класса. При этом минимальное количество дополнений позволит установить пластиковые оконные системы по доступной цене.
Мы создали рейтинг (версия Обзор окон) московских фирм производителей. Они прошли наш отбор потому что:
- имеют свой завод со стажем, а значит, вы не переплачиваете посредникам;
- вся их продукция сертифицирована;
- немецкая фурнитура от известных брендов;
- делают монтаж по ГОСТу;
- выпускают разные профили: Rehau, KBE, Provedal, Slidors, Veka и др.;
- остекляют балконы, квартиры, офисы, веранды, зимние сады, коттеджи и т.д.;
- работают в Москве и московской области.
| Фирма производитель | Рейтинг |
| Завод Окон ПВХ | ![]() ![]() |
| Завод Балконов | ![]() ![]() |
| Окна Дентро | ![]() ![]() |
| Фортали | ![]() ![]() |
| Фабрика окон | ![]() ![]() |
| Окна Стрит | ![]() ![]() |
| Окна Роста | ![]() ![]() |
| Домком | ![]() ![]() |
Отличие между моделями 70 мм и 82 мм
Линейка Софтлайн включает в себя 2 вида профилей:
- 70 мм;
- 82 мм.


Потребители, желающие установить оконные системы в квартире или офисе, часто задаются вопросом о том, какой из этих вариантов окажется лучшим. Однозначного ответа на этот вопрос быть не может, так как нужно учитывать индивидуальные требования заказчика к пластиковым окнам.
Veka softline 70 мм и 82 мм различаются по нескольким пунктам:
- монтажная ширина;
- количество камер в раме;
- максимальная толщина стеклопакета;
- показатель сопротивления теплоотдаче;
- количество используемых контуров утепления.
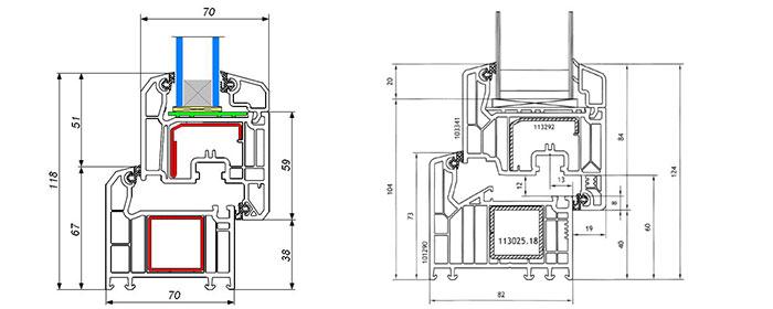
Технические характеристики профилей softline 70 мм и 82мм
Чтобы выбрать оптимальный вариант для частного случая следует более подробно изучить технические показатели системы Veka — профильные конструкции обладают разными характеристиками и эксплуатационными особенностями.
Пластиковый профиль Софтлайн 70 мм:
| Толщина рамы или монтажная ширина (мм) | 70 |
| Количество камер в раме (шт.) | 5 |
| Контуры уплотнений (шт.) | 2 |
| Допустимая толщина стеклопакета (мм) | 4-42 |
| Сопротивление теплопередаче (м2 С/Вт) | 0,75 |
Главная характеристика данного оконного профиля — в миллиметрах, ширина 70 мм. Эта особенность дает возможность устанавливать широкий энергосберегающий пакет. Для владельцев частных домов этот выбор будет оптимальным: сокращаются энергопотери дома и, соответственно, затраты на отопление жилья снижаются.


Рама с 5 воздушными камерами полностью соответствует требованиям, которые предъявляются к оконным системам категории А (высшая категория).
Это выгодно отличает профиль от изделий других линеек производителя. Так в окнах Евролайн (Veka Euroline) толщина стеклопакетов достигает 32 мм. Минимальное количество стеклопакетов — 2.


Конструкция рамы дополнена армированием с замкнутым сечением. Такая особенность делает оконную конструкцию максимально прочной и стойкой к механическим повреждениям.
По желанию заказчика такие конструкции могут обладать следующими видами механизмов открывания:
- глухие (неоткрывающиеся), часто применяются в офисных зданиях;
- поворотные;
- откидные;
- поворотно-откидные.
Окна Veka Softline 82 мм:
| Толщина рамы или монтажная ширина (мм) | 82 |
| Количество камер в раме (шт.) | 6-7 |
| Контуры уплотнений (шт.) | 3 |
| Допустимая толщина стеклопакета (мм) | 24-52 |
| Сопротивление теплопередаче (м2 С/Вт) | 1,09 |
Оконные системы с толщиной рамы 82 мм считаются конструкциями с повышенными тепло- и звукоизоляционными характеристиками. Производители улучшили технические характеристики за счет увеличения числа камер в раме — здесь их может быть 6 или 7. Увеличена и максимальная толщина стеклопакета (24-52 мм).


Выбирать такие изделия могут жители тех регионов, где зимы отличаются низкими температурами и сильными ветрами.
Такие показатели энергоэффективности softline можно использовать для установки в частных домах, офисных и производственных зданий. При этом могут изготовляться разные технологические типы конструкций, такие как:
- стандартные;
- изделия с повышенным уровнем теплоизоляции;
- конструкции с высоким показателем безопасности.


Важной особенностью при заказе оконных конструкций является выбор на фурнитуры. Подойдет на окно фурнитура roto nt, однако к этом оконным системам подходят все виды ручек и других механизмов, используемых для ПВХ окон.
Отзывы покупателей о профиле
Дмитрий, 48 лет, Красноярск
Вопрос о выборе пластиковых окон встал во время строительства частного дома. Главная задача состояла в том, чтобы выбрать крепкие и теплые пластиковые окна, но при этом не переплатить за ненужные дополнения. Не стали с женой идти на поводу у рекламы, начали самостоятельно изучать технологические характеристики профилей от нескольких производителей. В результате выбрали окна Софтлайн от Века. Из плюсов можно назвать несколько особенностей:
- Ширина 70 мм позволяет установить двухкамерный стеклопакет. Для частного дома это важный показатель энергоэффективности.
- Качество армирования профиля изучали с особым пристрастием. Продукция этой фирмы предлагает замкнутый армированный профиль (в виде прямоугольника). Такая особенность делает окна максимально прочными и стойкими к деформации.
Из минусов стоит назвать то, что оконные конструкции получились относительно тяжелыми и то, что цена на порядок выше цен на многие другие системы.
Средняя стоимость профиля в Москве
Точную стоимость профиля Veka Softline 82 и 70 мм назвать нельзя. Цена будет зависеть от нескольких особенностей, таких как:
- размер окна;
- толщина оконной рамы (70 или 82 мм);
- тип утеплителя;
- вид фурнитуры;
- механизм открытия (поворотный, откидной, поворотно-откидной);
- дополнительные детали.
Примерная стоимость готовой конструкции толщиной 70 мм находится в следующем диапазоне:
- двухстворчатое окно — 11 000-14 000 руб.;
- трехстворчатое окно — 13 500-16 000 руб.;
- балконный блок — 18 000-22 000 руб.
Цены на окна толщиной 82 мм следующие:
- двухстворчатое окно — 21 000-24 000 руб.;
- трехстворчатое окно — 26 000 29 000 руб.;
- балконный блок — 29 000-33 000 руб.
Таким образом, каждый покупатель может выбрать качественное окно по оптимальной стоимости.











